Building the Same Again – But Different

A few years back, Ian and Lynda Gare built a home they loved, but hankered to build again - making some subtle changes but using the same basic layout. Their new home in Golden Road, 10km from Alexandra in Central Otago, has incorporated features they spent a lot of time thinking about and revising before locking in an architect to draw up the plans to include these new ideas.
The four-bed home sits on an elevated site on a 26-acre block owned by Ian and Lynda, on which they grow winter feeding crops – namely Lucerne. The location chosen was heavily based on the view which provides 360-degree views that stretch over valleys, a range of rocky mountains and across to the McArthur Ridge vineyard with its changing seasonal colours.
A large part of the design was based on encouraging passive heating during winter so there is a large proportion of glass on the north face of the house with large eaves stretching out over the four bedrooms. This draws the sun deep into the home over winter with none coming in throughout what are normally very warm summers.
Ian says their aim with the new plan was to open up the view and create outdoor areas in harmony with this theme. Location on a lifestyle block has allowed the Gares to have freedom in the design with the space and privacy to achieve this. Ian primarily designed the house himself but worked in collaboration with Nathan Shearing from Fat Hippo Design Group in Invercargill.
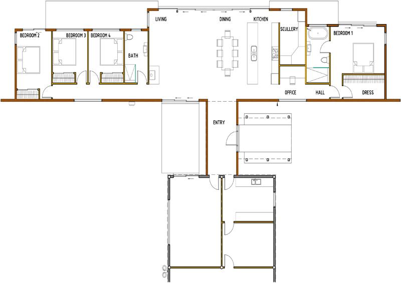
A major change is that the second lounge and garage are now incorporated into the main house whereas before they had been separated from the house. The entrance to the home also merits a change from before with Corten steel wrapped around the fascia of the flat roof that comes out from the front door and another opposing wall has Corten steel in an attractive grid pattern.
Lynda and Ian have introduced far more colour to the interiors this time round: there are various American white oak features and the flooring consists of vinyl planking over concrete so not quite so harsh in texture for the main living areas. While they were restricted on the exterior to choose colours in harmony with the environment, inside the home wider use of colours such as Resene’s Tuna and St Kilda have been an exciting exercise for Lynda in particular.