Wall House

The home sits on top of Mt Pleasant in Christchurch with views to a natural landscape of mountain and the waters of the estuary. With the environment front of mind, the owners were mindful of the impact of building and vice versa in this setting. It was critical that the form of the building was drawn to the key features of the elevated site and its wider environmental effects.
As the main image shows, the wall along the front of the property, offering a solid street frontage, gives the home protection; from that position the visitor stands with curiosity and wonder about what lies within.
The “wall house” has a northern façade which splits open to capture maximum sun contact and spectacular views while outdoor living areas are sheltered from the prevailing winds. As the design process began with MC Architecture Studio Ltd, the owners communicated a number of key points. -
- Their value for privacy
- To go far beyond a standard box
- Need to have an open and uninterrupted connection with the views and the sun
- Separate living areas for different activities and times of day
- Agreeable blend of home with land/site
- To be energy efficient
- Kitchen at the heart of the home
- A striking point of entry but still private
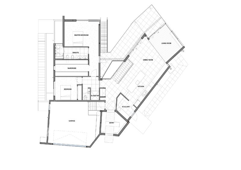
A key factor in the internal layout for MC Architecture Studio was to create two separate living quarters – an upper storey in the eastern wing opens itself up to the surrounding environment and its beauty, overlooking the bay through the natural vegetation of the mountain. But for a more private sense of living you descend to the lower living area which is a space of privacy and enclosed comfort.
A unique feature of the home is the journey created from the street to the home’s interior and the expansive views beyond. The street facing wall seems to cloak and protect the home and the view beyond. But on closer inspection, the wall separates with a small split which leads to a point of entry into the transitional space between the exterior and interior of the home. This is a tightly confined space, narrowly surrounded by tall, white concrete walls, the direction of sight drawn to a black steel door, standing alone at the end of the path with an inviting gesture of natural life extended from a soft, organically moulded timber door.
Once through the point of entry to a tiled doorway, the confining white walls are gone and the home presents its outstanding view of the bay and the surrounding natural landscape. The home now offers its previously kept secrets with the court yard providing both protection to the owners and a celebration of the home’s astonishing views.
The owners wish for curiosity and privacy from the outside is matched by interiors focussed on comfort, environment and a sense of security. Two separate wings – one facing the north-east corner and the other leaning to the north-west provide two different living areas, creating the owner’s brief for places to suit different activities and times of the day.
Two living areas
It was crucial in the client’s brief to have two separate living areas for different types of living (entertaining, intimate, relaxed) and also that they catered for different times of the day and weather. Downstairs is shaded and cooler using the balcony as a form of shelter from the sun in contrast to the upstairs living which is wide open to views and the external environment and is directly attached to the kitchen as the heart of the home. Designed by Ingrid Geldof Design, the kitchen has followed the owner’s brief for this area to become a crucial player in the plan, being at the entry to the home and a central element in the first-floor plan with direct connection of the lounge, dining and outdoor balcony areas.
The bedrooms are orientated to the north, not only for maximum sun entry but to take advantage of the views over the estuary – specially the master bedroom on the first floor. The internal layout of the master bedroom has the unique feature of an ensuite with a window in the shower which looks out over the water and creates a direct connection to it.
Energy efficiency
In accordance with the client’s brief there are a number of features in this home with more than double the level of insulation required by the NZBC found in the roof and walls. There is underfloor heating throughout the house and the natural thermal mass of the concrete block wall helps to control temperature of the internal environment.
Roofing
The True Oak MagnaFlow profile, chosen for its cost effectiveness, and it was evident from early discussions that when used to clad a wall it would be seen from the side without the tray profile look. It was also favoured for the shadowing effect it created, which emphasised the vertical lines that form a corrugate profile.
MC Architecture Studio began the design process for this home with an understanding of the surrounding environments and their impact on the building and vice versa. The Wall House has been formed to address and exist alongside its exterior world. A fragmented northern façade splits open for maximum sun contact while protecting a sheltered outdoor living a rea from the prevailing winds.