The Tree House
Owners Maddie Leach and Gary Bridle, when planning their new home, had a vision of a simple structure reminiscent of the kiwi “Doc Hut”. The practical implicity of open space providing shelter, warmth and strength appealed to their artistic values. “Simplicity is part of the built language of these places,” says Maddie. ”Nothing seems extraneous.” Maddie’s father, Architectural Designer Paul Leach, designed the home and his influences and experience played an important role in the design process.
The 568m2 site, its features and budget were the design constraints. The hillside site slopes at 25 degrees to the southeast and is approximately 300 metres from the coast. The site is within ISO category 4 and the most elevated area falls within the ‘Very High’ wind zone.
The site had an established pathway and at some stage had been terraced and landscaped. There was secondary growth of native trees, two mature Ngaio, an Oak tree and a large Walnut tree. An important aspect to the site was to retain these trees and the building was embedded amongst them giving a sense being in a “tree house”. The objective was to minimise any earthworks and take full advantage of the attributes the site offered. Whilst sea views were possible Maddie and Gary decided to forego this option to achieve privacy and the house was orientated to the south on the slope and away from the neighbouring property. One of the design difficulties Paul Leach had to resolve was the capture of sunlight and light in a house that was south facing.
Initial designs were given resource consent in 2008 however this design proved to be outside the budget that Maddie acknowledges was “tight and without room for contingencies”. By eliminating a mezzanine above the living room and a lower bedroom, modifying the entry and carefully considering materials to be used, the project was back on track and cleverly retained some attributes of the original design.
The main living spaces are virtually suspended in and above the canopy of surrounding trees - including the much-loved Walnut. This allows glimpses of the sea beyond and achieves the objective of living with the trees without impacting on the environment. In essence the house was sculptured so as to fit the
natural surrounding in what Maddie describes as a key part of her father’s “architectural sensibility”.
The influence in design preference came from childhood experiences living in the home designed by her father, Paul Leach. Much of his architectural design stemmed from thinking about the way that family, and ultimately clients, actually used and lived in the spaces created. Whilst aesthetic design was an
integral part of the process, function was the driver. Maddie recalls ”Our home was open plan and full of light, life and rooms that interrelated. Nothing was closed off and as a result my own home reflects this with only one internal door (to the bathroom).”
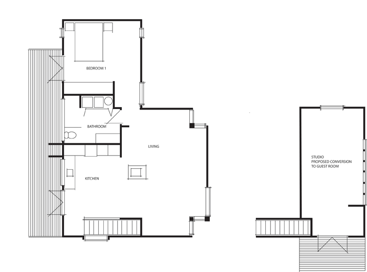
Both Gary and Maddie have fine arts degrees and practise as artists. As a result a studio was an essential part of the overall design concept. It was important that this be a separate workspace to think and create...unfussy and robust. The design is flexible and in the future it is intended that this area be converted into a guest room with a studio potentially being built above the existing garage.
The house, which is split level, has a main floor area of 77m2 together with a lower floor studio space of 26m2 making a total of 103m2. The house has one large bedroom with the studio designed as a potential for conversion into a further bedroom. The maximum height of the house is 8.20 metres supported by galvanised steel columns and concrete pile footings that are typically 500mm square holes taken to a depth of between 500 to 1500mm into Greywacke and mudstone. The steel bearers and columns are braced diagonally.
The building is fully sheathed with 7mm H3 structural plywood and the majority of the exterior cladding is 0.55 corrugated COLORSTEEL® Maxx® in ‘Indigo Blue’ with contrasting areas of 12mm Shadowclad stained in Cabot’s ‘Toi Toi’ water-based wood stain.
The roof is a trapezoidal profile in 0.55 COLORSTEEL® Maxx® ‘Smokey’. Guttering is Marley ‘Typhoon’ and downpipes use a combination of Marley half-round ‘Eclipse’ against the steel cladding and standard round piping on the porch areas. A timber fascia of Western Red Cedar runs along the front (south) face of the house. Soffit linings are 12mm Shadowclad. All windows and external doors are in double glazed silver anodised aluminium with the exception of the louver windows in living room and bedroom areas. The lower studio area has a window that uses Custom Orb translucent horizontal sheeting making a great contrast with the adjacent vertical Colorsteel.
Insulation for walls and roof is fibreglass batts. Under floor insulation uses Novafloor polyester batts.
Interior walls and ceilings are generally 10mm Gib Board, but the living room features an untreated Shadowclad ceiling and one bedroom wall is lined with 7mm plywood as a veneer. The studio floor is H3 plywood sanded and clear coated. Upper level floors are particleboard sanded and clear coated with OSMO Polyx Hardwax Oil. The bathroom floor is cork tiled and also coated with OSMO and includes large tiled shower area and laundry with bi-fold doors. The front face (south) and the rear face (north) each add very different qualities to the overall living experience with both warmth and coolness, groundedness and elevation, sun and trees close at hand.
As artists with a strong connection to their environment both Gary and Maddie feel that this home fulfils the ideas they developed with Paul, and has done so in a cost effective way. For Maddie the home is a particularly special place as her father passed away before he could see the home he designed completed. “This was the 30th house that came under the banner of ‘The Considered House’, Paul’s design studio name, and it is a delight to us every day,” says Maddie.
.jpg)
The Considered House
The late Paul Leach, born in Auckland, started his working life as a reporter for The NZ Herald and then trained as a cameraman with the National Film Board of Canada. Paul is well known in the NZ film scene and worked as a cameraman on many noteworthy NZ feature films. Paul was also passionate about architecture and design and in the early 1970s he designed their first family home on Auckland’s North Shore. With a list of architectural projects to his credit by 1987, Paul left the film industry and focused on his practice, “The Considered House,” as an Architectural Designer.
Paul was one of the first waves of Licensed Building Practitioners in the Design 2 category. His approach to design was informed by a long standing admiration for Frank Lloyd Wright, Group Architects, the work of Glen Murcutt, and New Zealanders Don Donnithorne and Gerald Melling in particular.
Paul Leach brought a very refined practicality to all his work, was always quick to admire and recognise the work of others and modest regarding his own achievements. His residential designs and renovation projects are represented throughout the greater Auckland region and span a period of nearly 40 years.