A Shared Interest in Green, Sustainable Homes

Architectural designer Sally Turnbull began her working life as a medical technologist but a stint as a builder’s labourer while building her first home gave her a taste for architecture. She went on to study architectural technology and started her own company Architectural Draughting & Design Ltd in 2004.
Specialising in many large residential builds on rural properties, Sally had a natural affinity with homeowners Dale and Alison with their shared interest in greener and more sustainable homes with multiple future-proofing and sustainable features.
The brief from the client was for a comfortable and spacious family home, suitable for teenagers and from the outset they wanted better than the building code with Solar Rib roofing, in ColorCote® required from the outset both for future-proofing and aesthetic appeal, the widely spaced ribs giving clean and pleasing lines to the roof. Photo Voltaic solar collectors (PV) had already been installed on a new shed roof with Solar Rib, in ColorCote® providing the option to increase the potential solar power production going forward.
Dale and Alison’s home is on a lifestyle block on the outskirts of Rangiora, set amongst a hazelnut orchard and only minutes away from the owners’ business premises.
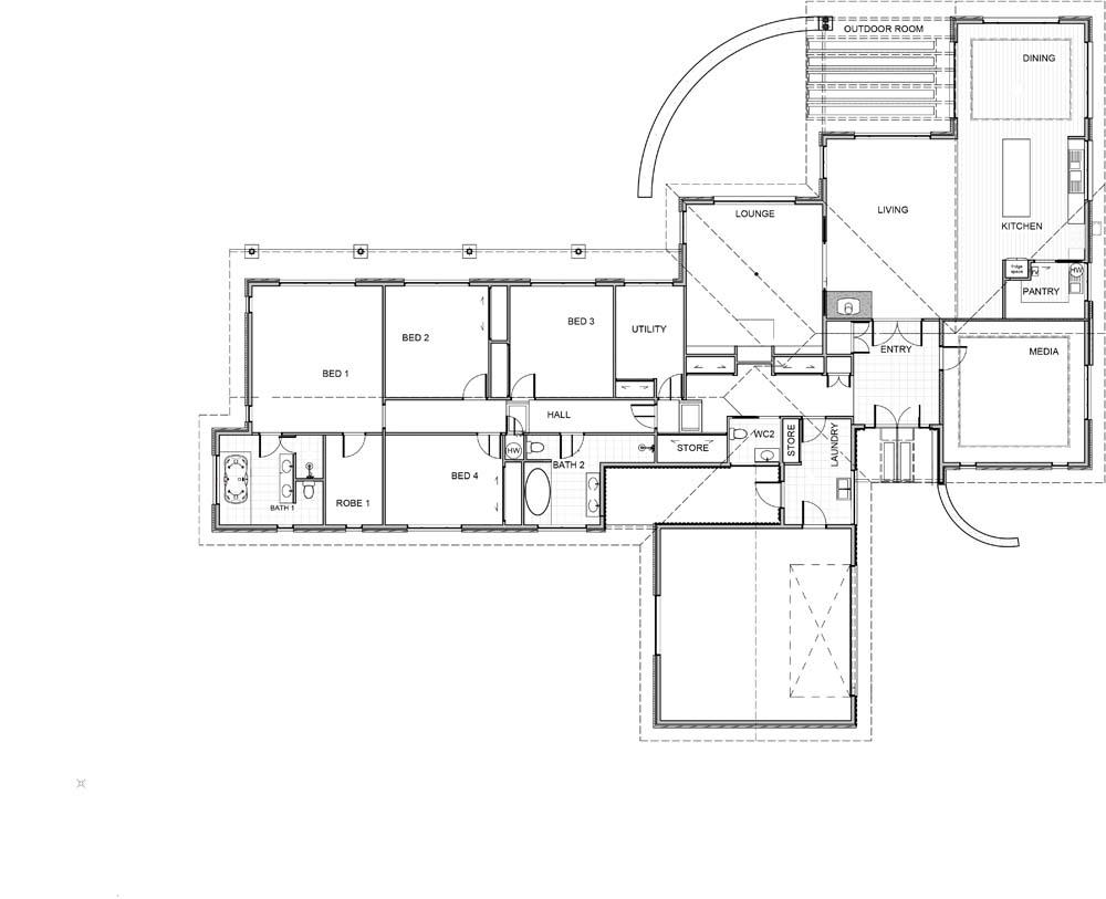
The home provides four bedrooms plus an office with a sound-proofed master suite away from a games room for harmonious life with teens. The large kitchen-pantry-dining-living space receives all-day sun and opens to outdoor rooms to east and west.
There’s a second lounge separated by cavity sliders which also access the verandah. Patios, an outdoor room, two bathrooms, double oversized garaging, large laundry, separate WC, a services porch, entry and media room complete the layout.
Bringing all he sustainable features together, the design process was influenced by the Solar Rib profile which determined many layout and flow decisions such as the orientation of the house with a long east-west axis enabling a large expanse of north facing roof to ensure future solar collectors would be as efficient as possible. The roof was pitched at 30 degrees for the same reason.
The 100 per cent recyclable ColorCote® Solar Rib roofing choice was easy, incorporating passive design principles, facing all the living and bedrooms to the sun and adding a verandah roof to the north facing bedrooms to provide shade in summer while allowing for winter sun.
Sally designed for in-slab heating by a highly efficient air-to-water heat pump (powered by PV) and made sure the entire floor slab was well insulated and isolated from the exterior with a slab thermal break. Rainwater from the roof is collected via a sealed system for collection in a rainwater tank. Its current use is for garden watering but can easily be upgraded to provide potable water in the future.
Cladding for the home was a mixture of clay bricks from Austral (a company now making carbon neutral bricks) and FSC sustainably managed, certified cedar. Growing trees for firewood to fuel the wood burner in the living room is easy with the home’s lifestyle block location.
In terms of meeting the owner’s brief, Sally feels the home will contribute to the owners’ well-being for decades to come. They immediately benefitted from their investment in that they have a warm, dry, quiet and comfortable home to live in; over time they will reap the rewards of minimal running costs from free power, water and heating long after the payback on the initial investment.