little oasis in the city

The concept for this home was simple: a shed in the bush.
But the site – down from the road in a gully with a stream – posed some design challenges.
As architectural designer Noel Jessop says, “With the fog and weather patterns we already have in Hamilton, building 15m below the road down in a valley the big worry was that the house could be cold and damp.
“So we tried to push the house back as far south on the site as we could to get the sunlight in but that was restricted by budget and factors such as the stream below.”
He adds, “But the beauty of the site is that you wouldn’t know it was there even though it’s only a couple of minutes drive from the city. It’s on the outskirts in a rural area that borders south east of Hamilton and you drop down to it from the road and it’s in its own little oasis surrounded by trees and bush.”
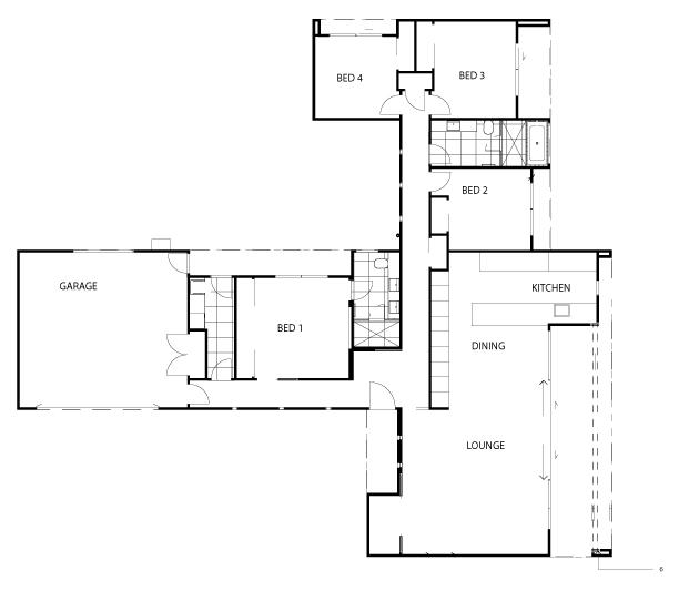
He says he walked the site with the owner, with the layout and the shape of the 228sq m home being determined by the stream running at the back.
“We went through two seasons before building got underway and not a lot changed between the concept stage and when building began.”
Noel says the home was oriented to face north – up the slope to the road - to bring in as much sun as possible and to provide view shafts of the site.
With an insulted ribraft floor, the home is double glazed and insulated above code. The northern glazing has been maximised for solar gain, while glazing on the southern face has been kept to a minimum.
Louvred windows form narrow vertical slots in the walls and provide efficient ventilation.
Noel adds, “Although budget was a constraint and we tried to keep the home simple, the family has three young boys so the home had to be durable.
“We used ribbed roofing and we also clad big areas of the house in the ribbed profile because it goes up quickly and easily and is durable. The ribbed profile is a sharp look and the black highlights the warmth of the cedar in the recesses.
“You look straight down on the property so you do see the roofing and cladding more than most houses that you approach from ground level so we wanted a simple house that sits well with the land because there is already a lot of detail in the bush and the greenery around the home.”
Noel says using the ribbed profile was all about ease of construction – meaning they could use a truss roof and lay the roofing at a pitch of 3 degrees, with external gutters and all rainwater running to the rear of the house.
A compact design was used to position all living spaces and bedrooms with direct access to the exterior and the bush beyond.
“With the three young boys it was important to have a connection from the house to the land so they could run in and out, and ride their bikes on the deck.”
The layout of the home, with the boys’ bedrooms in one wing and the master bedroom behind the living spaces means the parents have their own private courtyard.
Inside, the home is also designed with durability in mind with distressed oak floors and tiled bathrooms, while the kitchen has tiled areas and stainless steel bench tops.
“They allowed the kids to get involved with choosing colours in the main bathroom so that has blue tiles, while the master en suite has a black and white colour scheme.”